Autocad Dwg Proje / Çizim Adı : Kare kamelya çizimi
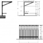
Dwg Açıklaması : Proje kare şeklinde kamelya ve çeşitli kentsel obje çizimlerini içermektedir. Kamelyaya ait temel planı,normal plan ve çatı planı,perspektif çizimi,2 görünüş çizimi, kesit,perspektif ve nokta detayları olarak temel çizimleri bulunmaktadır. Kamelya çevresinde kullanılan piknik bankı,çöp kovası,barbekü plan,kesit,perspektif çizimleri ölçüeri ile birlikte verilmiştir.
Proje İçerik Dili : İspanyolca
Dosya Uzantısı : dwg
Autocad Versiyonu : Autocad 2007
Çizgi Kalınlıkları : Projede çizgi kalınlıkları kullanılmıştır
Tefriş elemanları : Tefriş elemanları çizimleri var
Kat Planı Sayısı : Kamelya ve kentsel obje planları var
Kesit Sayısı : Kesit çizimi yok
Cephe Görünüş Sayısı : 2 Cephe çizimi var
Vaziyet Planı Çizimi : Vaziyet planı çizimi yok
Detay Çizimi : Detay çizimleri var

İndirme linkini görebilmek için lütfen üye olun veya giriş yapın.




