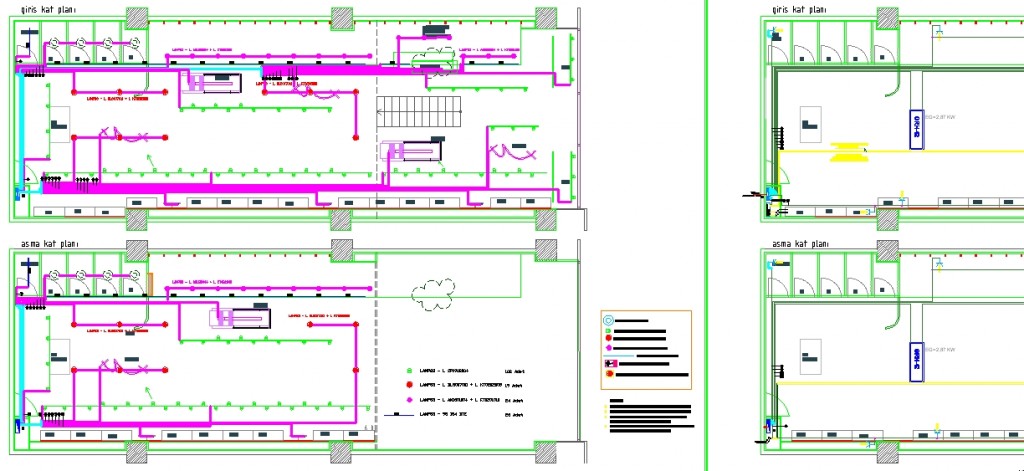
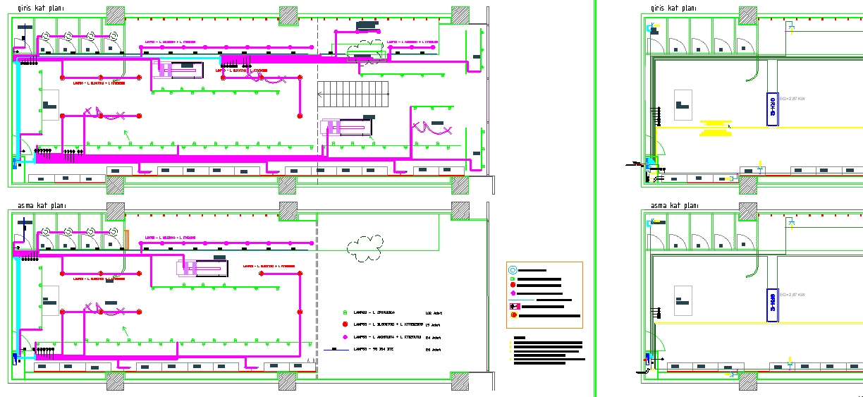
Autocad Dwg Proje / Çizim Adı : Asma katlı elbise mağazası elektrik projesi
Dwg Açıklaması : Proje asma katlı bir elbise mağazasının elektrik projesidir.Mağaza ebatları yaklaşık olarak 8 mt. x 23 mt. dir.
Proje İçerik Dili : Türkçe
Dosya Uzantısı : dwg
Autocad Versiyonu : Autocad 2007
Çizgi Kalınlıkları : Projede çizgi kalınlıkları kullanılmıştır
Tefriş elemanları : Elektrik tefriş elemanları çizimleri var
Kat Planı Sayısı : 2 katın aydınlatma tesisatı,kuvvet tesisatı,tava tesisatı,seslendirme tesisatı,yangın alarm tesisatı,telefon,data ve otomasyon tesisatı planları var
Kesit Sayısı : Elbise mağazası kesit çizimi yok
Cephe Görünüş Sayısı : Elbise mağazası cephe çizimi yok
Detay Çizimi : Pano detayları,kompanzasyon hesabı,akım kontrolü hesabı,gerilim düşüm hesabı,tablo yükleme cetveli,elektrik sembol listesi,zayıf akım tablosu detayları var

İndirme linkini görebilmek için lütfen üye olun veya giriş yapın.





