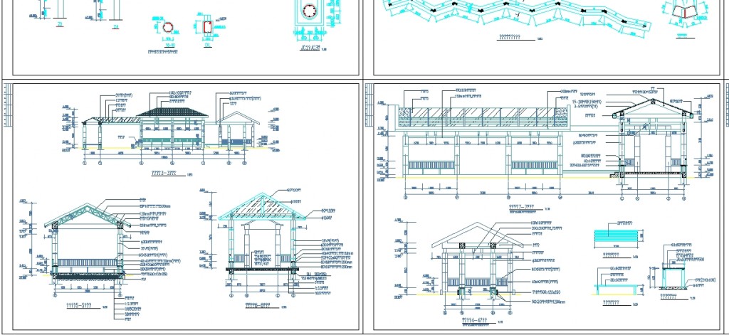
Autocad Dwg Proje / Çizim Adı : Gölgelikli köprü ve yürüyüş yolları
Dwg Açıklaması : Farklı şekil ve ebatlarda hazırlanmış 12 pafta köprü ve yürüyüş yolu çizimleri
Proje İçerik Dili : Yazı yok
Dosya Uzantısı : dwg
Autocad Versiyonu : Autocad 2007
Çizgi Kalınlıkları : Projede çizgi kalınlıkları kullanılmamıştır
Tefriş elemanları : Köprü ve yürüyüş yolu tefriş elemanları çizimleri var
Plan Sayısı : Köprü ve yürüyüş yolu plan çizimleri var
Kesit Sayısı : Köprü ve yürüyüş yolu kesit çizimleri var
Cephe Görünüş Sayısı : Köprü ve yürüyüş yolu cephe çizimleri var
Vaziyet Planı Çizimi : Vaziyet planı çizimi yok
Detay Çizimi : Köprü ve yürüyüş yolu detayları var

İndirGiris yapmalisiniz




