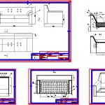
Autocad Dwg Proje / Çizim Adı : Elbise dolabı teknik çizimi
Dwg Açıklaması : Kıyafet dolabı autocad projesi,2 sürgülü,2 normal açılır kapaklı bir dolap projesidir.Dolabın solunda bulunan sürgülü çift kapak içinde asansörlü elbise askısı bölümü ve 2 adet açık raf,sağ tarafta bulunan çift kapaklı dolap içinde asansörsüz elbise askısı bölümü ve yüklük bölümü bulunmaktadır.Projede dolabın iç-dış görünüş çizimleri ve dolap ölçüleri verilmiştir.
Proje İçerik Dili : Türkçe
Dosya Uzantısı : dwg
Autocad Versiyonu : Autocad 2007
Çizgi Kalınlıkları : Projede çizgi kalınlıkları kullanılmamıştır
Tefriş elemanları : Mobilya tefriş elemanları çizimleri var
Plan Sayısı : 1 adet elbise dolabı plan çizimi var
Kesit Sayısı : 2 adet dolap boy kesit çizimi var
Görünüş Sayısı : Ön ve yan görünüş çizimi,dolap iç görünüş ve dolap perspektif çizimi var
Detay Çizimi : Elbise dolabı detay çizimi yok

İndirme linkini görebilmek için lütfen üye olun veya giriş yapın.



