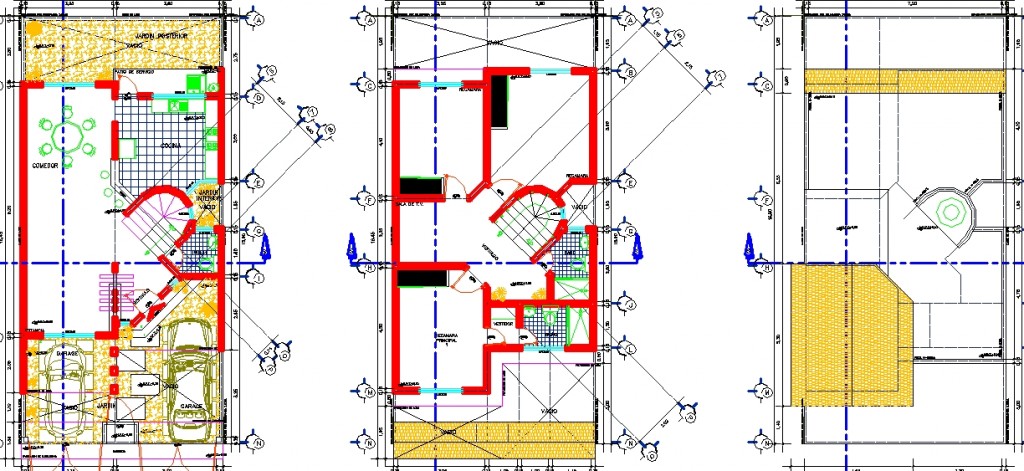
Autocad Dwg Proje / Çizim Adı : Müstakil dublex ev projesi
Dwg Açıklaması : Dubleks villa mimari çizimi dosyası içerisinde çizgi kalınlıkları,ıslak hacim zemin taramaları,ölçülendirme ve akslar çizilmiştir.Proje alanı 7,5 mt.x16 mt. (1 kat planı yaklaşık 120 m2) dir.
Zemin kat planında iki araçlık park yeri,yaşama alanı,mutfak,tuvalet ve bahçe bulunmaktadır.
1.kat planında ebeveyn banyolu bir yatak odası,bir misafir,bir çocuk odası ve banyo hacimleri bulunmaktadır.
Proje İçerik Dili : İspanyolca
Dosya Uzantısı : dwg
Autocad Versiyonu : Autocad 2007
Çizgi Kalınlıkları : Projede çizgi kalınlıkları kullanılmıştır
Tefriş elemanları : Tefriş elemanları çizimleri var
Kat Planı Sayısı : 2 Kat planı,1 çatı planı çizimi
Kesit Sayısı : 2 Kesit çizimi
Cephe Görünüş Sayısı : 3 Cephe çizimi
Vaziyet Planı Çizimi : Vaziyet planı çizimi yok
Detay Çizimi : Detay çizimi yok

İndirme linkini görebilmek için lütfen üye olun veya giriş yapın.





